
WESTON, FLORIDA
CLUBHOUSE PERFORMANCE INSTITUTE
46,000+ square feet for elite local athletes and dedicated professionals, creating an unparalleled campus.
Clubhouse Performance Institute
WESTON, FL
The Clubhouse Performance Institute will be an innovative campus of three buildings totaling 47,000 square feet that will serve over 200 of South Florida’s most elite athletes. The facility is being developed by Clubhouse Private Wealth, a professional services firm catering to professional athlete clients, in collaboration with House of Athlete, an athlete lifestyle brand founded by former NFL wide receiver Brandon Marshall, dedicated to improving both mental and physical fitness. An existing 10,000 square foot office building will be renovated to accomodate Clubhouse’s financial and real estate divisions.
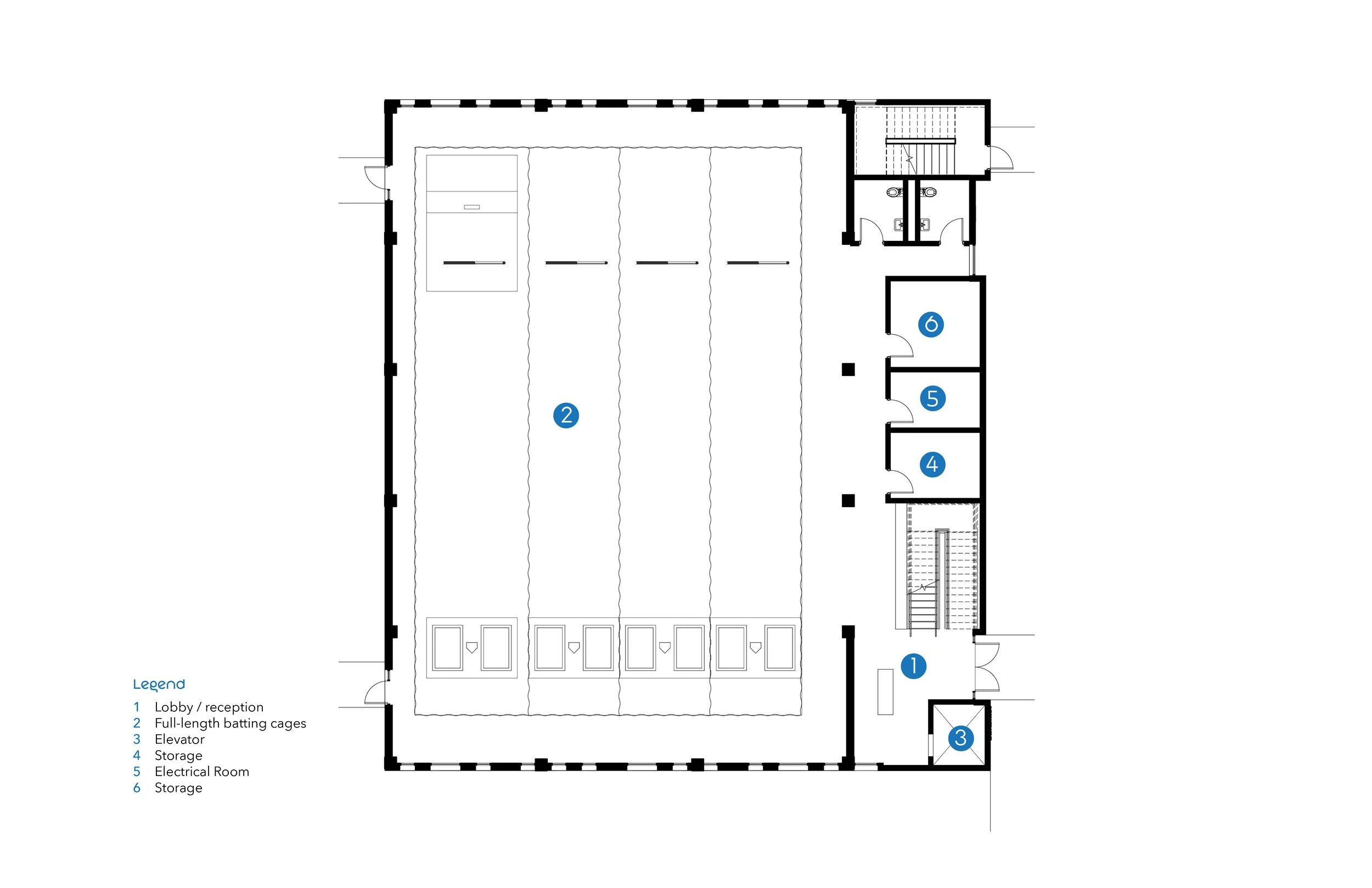
Another existing 21,000 square foot building will be renovated to include educational space for academic tutoring and training on NIL, college recruitment, and finances for distinguished high school athletes. Additional space for private strength and conditioning training, along with a first-class sports medicine and recovery facility will also be located in this building, complementing existing training space at the adjacent House of Athlete. To further differentiate the campus from other South Florida facilities, a new 16,000 square foot building will house full-length indoor batting cages and the only NBA-regulation basketball court in Broward County.